CASA KAUFMANN - R. NEUTRA
- albaarenos
- 1 nov 2021
- 14 Min. de lectura
RICHARD NEUTRA

Richard Josef Neutra nació en Viena el 8 de abril de 1892. Estudió arquitectura en la Universidad Técnica de Viena y asistió también a clases en la escuela de construcción de Adolf Loos, uno de los arquitectos que más respetaba y que consideraba como “el maestro a quien debo mis ideas sobre la arquitectura”. Permaneció en su taller hasta el principio de la guerra.
Neutra trabajó en Zúrich (Suiza), en el despacho del jardinero paisajista Gustav Ammann. Luego se iría a Berlín, donde se ganó la vida como dibujante publicitario, antes de incorporarse a la oficina municipal de obras públicas y urbanismo de Luckenwalde (Berlín). Allí conoció al arquitecto Erich Mendelsohn, del que se convirtió en asistente en su estudio de Berlín entre 1921 y 1923.
En 1923 su nacionalidad judía lo obligó a emigrar a Estados Unidos. Neutra conoció a Louis Sullivan antes de su muerte y en su funeral conoció a Frank Lloyd Wright, a quién admiraba. Neutra trabajó con Wright en su estudio en algunos de sus proyectos, aunque chocaba con algunos de los principios de su maestro.
Alrededor de 1925 se mudó a California, para trabajar en el estudio de Rudolf Schindler, a quien ya conocía de su juventud. Recibió el encargo de la Casa de reposo Lovell (1927), la cual originalmente iba a ser diseñada por Schindler, mientras que Neutra se encargaría del ajardinamiento. Debido a que Schindler coqueteaba con la señora Lovell, su marido decidió traspasar el proyecto a Neutra, lo que distanciaría a los dos amigos durante varios años. Para esta obra diseñó un esqueleto de acero que requería un montaje en muy poco tiempo. Fue su primera gran obra, en ella sentaría las bases de su arquitectura caracterizada por las ventanas con marcos metálicos. Las primeras casas fueron concebidas como contenedores minimalistas. Con interiores lineales, donde las estancias estaban fundidas. Los tejados planos actúan como una tapa del contenedor. El aspecto plano del techo apenas es roto por la chimenea normalmente de piedra.
Neutra abrió su propio despacho y comenzó a diseñar proyectos que incorporaban criterios novedosos, como la estructura de hormigón armado y refuerzos metálicos en las ventanas. También diseñó viviendas prefabricadas que denominó "One Plus Two" y trabajó en el proyecto "Rush City Reformed", un proyecto de ciudad de futuro. En 1927 publicó su libro "Wie baut Amerika?" ("¿Cómo se construye América?").
Neutra fue en los años siguientes fundador y profesor de la Academia de Artes Modernas, en Los Ángeles. Además, trabajó en numerosos proyectos, y fue experimentando en todos ellos con nuevos materiales y nuevas estructuras.
Algunas obras anteriores:
Lovell House, 1929, Los Ángeles, California
Mosk House, 1933, Hollywood
William and Melba Beard House (with Gregory Ain), 1935, Altadena
Corona Avenue Elementary School, 1935, California
Casa Von Sternberg, 1935, San Fernando Valley
Landfair Apartments, 1937, Los Ángeles, California
Miller House, 1937, Palm Springs, California
John Nesbitt House, 1942, Los Ángeles
Kaufmann Desert House, 1946, Palm Springs, California
El método de trabajo de Neutra, trata de relacionarse con el cliente no como financiador sino como colaborador. Para conocerle bien, se introduce en su vida privada, y así consigue satisfacer todas sus necesidades. De hecho, Neutra llegó a sobrevolar alguna de las parcelas de futuros proyectos para entender mejor cómo afectaba el soleamiento. Arquitecto y cliente estaban continuamente en contacto mediante carta postal:
LOS KAUFMANN

Edgar Jonas Kaufmann era un empresario judío, propietario de los Grandes Almacenes Kaufmann en Pittsburg (Pensilvania). Se casó con su prima hermana Lilliane Sarah Kaufmann y tuvieron un hijo, Edgar Jonas Kaufmann junior. El matrimonio era entusiasta de la arquitectura, el arte y el diseño moderno, de hecho su círculo de amistades llega hasta Frank Lloyd Wright, quien les hace la “Casa de la Cascada”, entre otros proyectos.
Realmente fue Edgar Junior quien les presentaría a Wright, ya que estaba estudiando en la escuela de arquitectura Taliesin de Wright.
Como Pensilvania (donde se encuentra la Casa de la Cascada) es un estado frío en invierno, deciden hacerse una segunda casa de vacaciones en Palm Springs para gastarla durante esos meses. Est a segunda casa deciden encargársela a Richard Neutra, a quien también conocían de Taliesin por su hijo. El hecho de que no se la encargaron a Wright no le entusiasmó al maestro, ya que además Neutra había trabajado bajo sus órdenes.

Pocos años después de la construcción de la Casa del Desierto, el matrimonio Kaufmann se divorcia y se reparten los bienes. Pero Lilliane no tiene suficiente y decide construirse otra casa encargándosela ahora sí a Wright. Irónicamente esta nueva casa, la “Boulder House” se iba a construir al lado de la Casa del Desierto. De hecho, en los dibujos que hace Wright sobre esta casa, se puede observar al fondo un pequeño guiño a la casa de Neutra. Finalmente nunca se llegó a construir debido a la muerte de Liliane en 1952.
ESTILO INTERNACIONAL
El estilo internacional, también llamado Movimiento Moderno o Racionalismo (aunque no tiene designación homogénea en todos los países), fue un estilo que se desarrolló entre los años 1925 - 1965. Se considera la principal tendencia arquitectónica de la primera mitad del S. XX.
Surge en un contexto histórico dónde la tecnología avanza rápidamente y hay una clara necesidad de nuevos modelos residenciales en las ciudades, debido a la gran cantidad de gente que emigra desde el campo. El hecho histórico que más influye es la Segunda Guerra Mundial (1939 - 1945) ya que provocó una gran escasez de materiales. Las industrias centraban todos sus recursos en la guerra, si bien, posteriormente se vuelcan al sector de la contrucción.
Este movimiento arquitectónico basa sus ideas en la razón, las líneas sencillas y ortogonales, basadas en formas geométricas simples y la utilización de materiales industriales como el acero, el vidrio o el hormigón en elementos prefabricados. Además, renunciaba la excesiva ornamentación y daba gran importancia al diseño. Del mismo modo, defendía el uso de la planta y fachada libre, la cubierta plana y el empleo de voladizos. Finalmente, el diseño de la estructura se centraba en un esqueleto de columnas en vez de estructura en masa.
Fue un movimiento que se desarrolló en paralelo a las "vanguardias artísticas", pero teniendo en cuenta los valores de la modernidad. Se preocupaba por mejorar la sociedad a través de un nuevo lenguaje con respecto a la construcción y el diseño. Se buscaba solventar el problema del gran aumento de la población en las ciudades y entender e interpretar las relaciones del ser humano con su entorno. Por tanto, consideraban muy relevante la elección del lugar en dónde se iba a construir.
Este movimiento no solo se interesó por la arquitectura propiamente dicha, sino que también fomentó la aparición de congresos y conferencias para su difusión. En concreto el "Congreso Internacional de Arquitectura Moderna" (CIAM) y el "Comité Internacional para la Resolución de los Problemas de la Arquitectura Contemporánea" (CIRPAC).
Características arquitectónicas del estilo internacional:
Énfasis en la ortogonalidad (tanto en planta como en sección)
Superficies lisas y pulidas
Formas sin ornamentación
Concepto de ligereza
Voladizos
Nuevas técnicas y materiales
Amplitud espacial (planta libre), con interiores luminosos y diáfanos
Asimetría
Grandes ventanales horizontales divididos por perfiles de acero
CASA KAUFMANN
Neutra recibió el encargo de diseñar una vivienda en pleno desierto de Palm Springs (California). La ciudad se sitúa al pie del monte San Jacinto, el refugio de las estrellas de Hollywood de aquella época. En 1946, el señor Kaufmann decide acudir a Richard Neutra para la construcción de su nueva casa de vacaciones. De él esperaba un proyecto igual de brillante que el de su maestro Wright, pero mucho más ligero y luminoso.
Neutra describe este paisaje cómo “el lugar más accidentado y casi inhabitable que se pueda imaginar
junto a la luna”. Este factor realmente lo inspiró, y diseñó su edificio como “una máquina en el jardín”.

Las premisas del cliente eran una casa de vacaciones o de fin de semana para el invierno con espacio para el servicio, vistas y piscina. El matrimonio exige al arquitecto la tecnología del suelo radiante, rechazando por completo el aire acondicionado, definiendo así el uso invernal de la casa.

Los dos factores que explican porqué la casa está prácticamente rodeada de vidrio a pesar de encontrarse en el desierto, son que sólo iba a ser utilizada durante los meses invernales y la importancia del factor solar y lumínico. Por contra, las fachadas orientadas al norte y oeste, son opacas como protección a las grandes ventiscas y tormentas de arena que se crean en dirección noroeste. Por este mismo motivo, el patio principal se encuentra protegido por la propia casa arrinconándola a la esquina noroeste de la parcela. (Elaboración propia)
Neutra trabaja con la idea de no modificar el terreno existente, aprovechando la pequeña pendiente de la parcela para que la casa resulte fundida con el paisaje que la rodea. La vivienda se adapta al terreno rocoso de una forma muy discreta y armónica con el lugar, donde las cubiertas parecen flotar sobre él. El arquitecto otorga gran importancia a los planos horizontales, donde el único elemento vertical es la chimenea.
SISTEMA WRIGHTIANO
Para entender la planta primero se debe introducir la idea que le permite a Wright considerarse el mesías de la arquitectura, aquello que le da la confianza para determinar sus proyectos como válidos. Esta disciplina es heredada del pedagogo alemán Froebel, quien habla de la geometría cristalográfica, la estructura más perfecta y fuerte que existe. Así ninguna parte del todo será un capricho o algo arbitrario.
La planta se rige mediante unas leyes internas, líneas imperceptibles a simple vista. Sin embargo, estas hacen imposible concebir la vivienda sin una de sus partes.
“En cada modelo de Froebel, las partes tienen que, en cierta medida, someter su identidad al todo”. Como se puede observar en la casa Winslow de Wright, el hall de recepción está perfectamente integrado en los espacios a los que sirve. Un espacio divisible en bandas, conectando con la biblioteca, el comedor, la escalera y el lavabo. Una caja que parece simple, pero está ingeniosamente diseñada mediante una malla refinada siempre ortogonal.
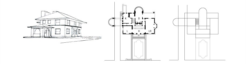
En la Casa Kaufmann se encuentran 3 líneas organizativas en 2 direcciones perpendiculares (norte-sur y este-oeste), con intersección en el corazón de la casa, la chimenea, núcleo de la actividad de la vivienda por el que pasan todos los recorridos. Este rectángulo central se divide en bandas que conectan con los diferentes espacios del programa (ala de invitados, de servicio, dormitorio principal, jardín y acceso). Configurando así, la planta de molinillo, cuyos brazos salen hacia el desierto. Esta forma en cruz, garantiza que cada una de las alas tenga la máxima ventilación e iluminación diurna posible y que los dormitorios mantengan la más alta privacidad e intimidad. Además permite un programa adecuado a las exigencias del matrimonio Kaufmann.
Ahora bien, en la planta final, Neutra se distancia de ese módulo rígido wrightiano o de la influencia japonesa que se rige en tatamis (90x180), dirigiéndose por un camino más flexible y maduro, siguiendo métricas funcionales y económicas. Configurando unas líneas secundarias más realistas para las necesidades del uso. Contradiciendo, en parte, a la geometría molecular del cristal.
(Elaboración propia)
La vivienda permite una vivencia diferente según el usuario, empezando por el acceso. En caso de ser el propietario, puedes entrar por la entrada principal y descubrir el patio principal. Por otra parte, si llegas por el acceso rodado, haces el mismo recorrido pero en paralelo, tras un plano opaco, así los invitados que disfrutan de la piscina no ven la bolsa de la compra. Una vez situado en el corazón de la casa, el recorrido del servicio se limitará a la zona oeste. Teniendo así sus estancias conectadas con la cocina y el almacén. Sin embargo, los invitados disfrutarán del ala norte, con un patio privado, protegido por vegetación. Dos habitaciones servidas con lavabo e interconectadas con la casa mediante una galería exterior protegida por mallorquinas. El ala este queda reservada a los propietarios, con una suite privada, baño y vestidor, que conecta con unas vistas espectaculares del patio principal.
INFLUENCIA JAPONESA
Otra influencia de Richard Neutra es la casa tradicional japonesa. En primer lugar, la separación de tipos de estructuras, siguen una jerarquía según el protagonismo de la estancia. La más resistente, el “daikokubashira” o pilar principal, que se materializa en la chimenea y sustenta la parte más importante, la sala de estar. A continuación, una red de pilares de acero, que siguen las líneas de leyes internas wrightianas. Y finalmente, la estructura de balloon frame, que consiste en particiones que organizan espacios secundarios.
Por otro lado, la casa japonesa disocia estructura y cerramiento. Así el muro de papel casi inexistente con esqueleto de madera, se equipara al balloon frame de la casa Kaufmann, añadiendo a ese esqueleto listones de madera en diagonal. Y la estructura japonesa de pilares y vigas de madera, se traduce a pilares de acero.
En esta casa, como en otras muchas, Neutra usa el muro de carga americano tradicional, hecho con listones de madera, configurando un espacio que transmite sensaciones muy similares a las estancias de muros ligeros y desmontables japoneses, los “shinkabe”.

También encontramos una referencia al “shitomido”, persianas móviles que se abaten, colocadas como protección en el espacio que comunica el ala de invitados con el comedor.
Una de las características más especiales de la casa de invierno de los Kaufmann es la borrosidad espacial entre el interior y el exterior, lo que los japoneses llaman “engawa”. Es el espacio que recorre la casa bajo el alero, pero en general se refiere a espacios de transición, intermedios, encontrándote así en una real interfase. Desde una mirada más filosófica, concibe un espacio como un flujo continuo entre dos contrarios: dentro y fuera. La razón de la casa japonesa para crear este tercer espacio surge de la necesidad de proteger las paredes de papel del tiempo, mientras que Neutra se apropia del significado más figurativo.
(Elaboración propia)
Y finalmente introduce el concepto “tokonoma”. En la cultura oriental se refiere al “nicho de placer”, espacio donde se guardaba la escultura de dioses de enormes dimensiones. Figura de culto en el centro del templo, la chimenea en el centro del molinillo, centro de vida de la casa.
(Elaboración propia)
Para profundizar en lo mencionado con anterioridad, Neutra diseñó una casa donde las cubiertas parecen flotar sobre el terreno. Esto es debido a la idea, influenciada por la casa japonesa, de difuminar el límite entre el interior y el exterior. La ausencia de límite provoca que los volúmenes se disuelvan de manera progresiva en el paisaje. Esta característica es claramente apreciable en el dormitorio principal, pero sobre todo en el salón, donde los cerramientos de vidrio se deslizan y las estancias se abren hacia el sureste, mientras que la cubierta se desplaza hacia la piscina de manera que hay una conexión espacial entre ella y la casa. Otra característica que enfatiza el concepto de ausencia de límite, es la colocación de suelo radiante en el exterior, como por ejemplo en la piscina. Confundiendo así la percepción dentro y fuera.
Para dar mayor énfasis a la cualidad de las cubiertas flotantes, la estructura está formada por la combinación de dos sistemas, por un lado la madera (“balloon frame”), y por otro los pilares metálicos, de manera que se reduce la cantidad de soportes verticales. Una estructura mixta que le da flexibilidad a Neutra para mover el pilar de la esquina unos metros más atrás, así llega al concepto principal de la casa, una negación al límite. Y nos hace preguntarnos cómo un pilar de apenas 15 cm sujeta un voladizo tan prominente.
(Elaboración propia)
Un diseño maduro que refleja la experiencia con la casa unifamiliar, es decir, no necesita contar con todas las tecnologías constructivas del momento, sino que se aprovecha de aquellas técnicas que ya conoce a la perfección. Este aspecto lo comenta Raymond Neutra, su hijo, quién habla del poco interés que tenía su padre en la honestidad, sobre todo en lo referente a los materiales. Así pues, descubrimos que nos ha engañado con esos reflejos plateados de la cubierta, haciendo que parezca acero al ojo humano pero no es más que madera pintada de plateado.
No es el único elemento con el que engaña, ya que los muros de la casa a simple vista pueden parecer de hormigón, pero se trata de los listones de madera revestidos con yeso; o bien, de piedra, siendo realmente balloon frame, con mortero y la piedra de Utah. Pero el elemento más impactante es la chimenea, que parece una roca del desierto que atraviesa la casa, pero está construida con un esqueleto de madera recubierto de ladrillo y revestida con piedra.
En cuanto a la materialidad, Neutra combinó equilibradamente elementos de vidrio y acero (materiales ligados al estilo internacional), con madera y piedra arenisca (materiales tradicionales). Además quiso utilizar materiales que tuvieran la misma gama cromática que la del propio emplazamiento, para que la casa se mimetizara aún más con el entorno.
Quizás el material más llamativo, puesto que es el que recubre toda la superficie de la chimenea y algunos de los muros de carga, es la piedra. Este material utilizado tanto en interiores como en exteriores, crea un dinámico efecto de claroscuro que contrasta con la planitud del resto de materiales y acabados. Neutra quiso utilizar la piedra natural de Utah, la cual fue trabajada por los mismos cinceladores que lo habían hecho en la Casa de la Cascada 10 años antes.
Otro material utilizado es el aluminio. Lo podemos encontrar en las aletas verticales móviles (mallorquinas), que protegen de los intensos rayos de sol y las fuertes tormentas de arena.
Finalmente, un elemento a destacar son los canalones. Los situados en las fachadas orientales, se extienden más allá del fin de la cubierta, de modo que el agua que circula en su interior fluye hacia el este y cae sobre las rocas del jardín. Neutra hace un guiño a las gárgolas populares en los jardines japoneses, las moderniza y crea un curioso efecto de cascada.
Como conclusión presentaremos "LA GLORIETA":
Todo el conjunto de la vivienda no parece elevarse más allá de la planta baja, a excepción del volumen central, creando así una pequeña terraza a la que se accede por una escalera exterior. Neutra la bautizó como “la glorieta”.
El arquitecto evitó hábilmente la prohibición de construir una segunda altura, dejando una terraza completamente abierta, sin muros que la definan. Un engaño similar al que hace Adolf Loos en la Casa Steiner.
La glorieta se considera una recopilación de las claves compositivas y funcionales de la casa. Encontramos reflejado el concepto engawa, con esa ausencia de límite japonesa, integrando la chimenea y suelo radiante en un espacio exterior. También la continuidad de la unidad wrightiana, siendo el centro de la casa la parte más importante, la única que se repite en una segunda planta, junto con el único elemento vertical, el tokonoma. En pocas palabras, las mejores vistas de Palm Springs.
DOCUMENTACIÓN ORIGINAL
(fuente UCLA)
IMÁGENES EXTERIORES
IMÁGENES INTERIORES
BIBLIOGRAFIA
LIBROS
Mac Lamprecht, B., Neutra, D., Shulman, J., & Gössel, P. (2000). Richard Neutra : complete works. Taschen.
Sack, M., Neutra, R. J., & Neutra, D. (1994). Richard Neutra (1a, 2a ed.). Gustavo Gili.
González Capitel, Antón (1996). La arquitectura tardía de Frank Lloyd Wright, el primer maestro moderno. "Arquitectura europea y americana después de las vanguardias". Summa Artis, 41. Espasa-Calpe, Madrid, pp. Archivo Digital UPM. https://oa.upm.es/43102/1/Parte_2_Capitulo_1_Arquitectura_Tardia_opt.pdf
TESIS
Vela Castillo, J. (1999). RICHARD NEUTRA: Un lugar para el orden [tesis doctoral, Escuela Técnica Superior de Arquitectura de Madrid]. Repositorio Institucional UPV
Olmeda Moret, R. (2018). La vivienda moderna a través de la fotografía de Julius Shulman. 1940-1960. [Trabajo fin de grado, Grado en Fundamentos de la Arquitectura, Universidad Politécnica de Valencia]. Repositorio Institucional UPV. http://hdl.handle.net/10251/115157
ARTÍCULOS
Hay, D. (1999). A modernist masterpiece in the desert is reborn (The project for the Kaufmann-House restoration, Marmol-and-Radziner, architects). Architectural Record, 187(9), 92–98. https://web.p.ebscohost.com/ehost/detail/detail?vid=0&sid=bce1efad-483f-4c2a-8ab6-b698f46c0bd6%40redis&bdata=Jmxhbmc9ZXMmc2l0ZT1laG9zdC1saXZlJnNjb3BlPXNpdGU%3d#AN=503669719&db=asu
Richard C. Mac Cormac, (2009). La Anatomía de la Estética Wrightiana. Traducido del artículo ‘The anatomy of Wright's aesthetic’ (Architectural Review, Nº 143, 1968). https://n9.cl/o9yj3
Freiman, Z. (1995). Back to Neutra. Progressive Architecture, 76(11), 72–.
Paul Davies (2015). Richard Neutra (1892-1970). Reputations. The Architectural Review. https://www.architectural-review.com/essays/reputations/richard-neutra-1892-1970
Tuset, J. J. (2012). ENCUADRES DEL JARDÍN. VISITA GRÁFICA POR LOS IDEALES DEL JARDÍN DOMÉSTICO MODERNO. EGA : Revista de Expresión Gráfica Arquitectónica, 17(20). https://doi.org/10.4995/ega.2012.1414
PÁGINAS WEB
Mosquera, J. (2012, 24 de octubre). Casa Kaufmann. Arquiscopio. https://arquiscopio.com/archivo/2012/10/24/casa-kaufmann/
Serrano, C. (2017, 26 de abril). Icono AD: Richard Neutra. Revista AD https://www.revistaad.es/diseno/iconos/articulos/richard-neutra-biografia/18862
- (2009, 30 de marzo). Arquitectos: Richard Neutra. Diseño y arquitectura https://www.disenoyarquitectura.net/2009/03/arquitectos-richard-neutra.html
- . Richard Neutra. Arquitectura y diseño. Consultado el 15 de septiembre de 2021 https://www.arquitecturaydiseno.es/creadores/richard-neutra
Uribe, B. (2016, 8 de abril). En perspectiva: Richard Neutra. ArchDaily https://www.plataformaarquitectura.cl/cl/764961/en-perspectiva-richard-neutra?ad_source=search&ad_medium=search_result_all
-. Casa Kaufmann. Wikiarquitectura. Consultado el 15 de septiembre de 2021 https://es.wikiarquitectura.com/edificio/casa-kaufmann/
- The Kaufmann Family. Fallingwater. Consultado el 15 de septiembre de 2021. https://fallingwater.org/history/about-fallingwater/the-kaufmann-family/
Karina Duque (2014). Clásicos de Arquitectura: Casa Kaufmann / Richard Neutra. Plataforma Arquitectura
-. Racionalismo (arquitectura). Wikipedia. Consultado el 24 de septiembre de 2021 https://es.wikipedia.org/wiki/Racionalismo_(arquitectura)
Mengual Muñoz, A. y M. B., Iñaki. Estilo Internacional. Urbipedia. Consultado el 24 de septiembre de 2021
-. Arquitectura de Estilo Internacional. Ydiversa. Consultado el 24 de septiembre de 2021 https://www.urbipedia.org/hoja/Estilo_Internacional
iiArquitectos (2010, 8 de enero). En perspectiva: Richard Neutra. iiArquitectos http://www.iiarquitectos.com/2010/01/estilo-internacional-en-arquitectura-y.html
VÍDEOS YOUTUBE
Lucas Maestro. (2014, 19 de mayo). Casa Kauffman ETSA IPR Taller 1 Grupo 5. YouTube. https://www.youtube.com/watch?v=8OuWbKrzN_w
Lucas Maestro. (2014, 20 de febrero). Casa Kaufmann R. Neutra Grupo 5. YouTube. https://www.youtube.com/watch?v=O_91P0n97kg
PUBLICACIONES EN REDES SOCIALES
Donnelly, M. [@ways.of.telling] (2016, 26 de enero). [fotografía]. Instagram. https://www.instagram.com/p/BBA0WW7Jz4d/?utm_medium=share_sheet
Sebastián Arquitecto. [@sebastianarquitecto] (2020, 25 de julio). [fotografía]. Instagram. https://www.instagram.com/p/CDC4VI1lMox/?utm_medium=share_sheet
Stephen D. Schafer. [@habs_photographer] (2020, 19 de febrero). [fotografía]. Instagram. https://www.instagram.com/p/B8wQkwkgY1w/?utm_medium=share_sheet
Sulcer, Elizabeth. [@elizabethsulcer] (2021, 1 de junio). [fotografía]. Instagram. https://www.instagram.com/p/CPlpZ7lDW7j/?utm_medium=share_sheet
The Cali Sisters. [@thecalisisters] (2021, 9 de marzo). [fotografía]. Instagram. https://www.instagram.com/p/CO76YhJLJ6I/?utm_medium=share_sheet
Esteban. [@thecreativesagent] (2021, 1 de junio). [fotografía]. Instagram. https://www.instagram.com/p/CMLjH-sg9yL/?utm_medium=share_sheet
Dirt. [@dirtdotcom] (2020, 19 de octubre). [fotografía]. Instagram. https://www.instagram.com/p/CGgTCVajRkZ/?utm_medium=share_sheet
Arsin et Bieuville. [@arsin_et_bieuville] (2019, 4 de junio). [fotografía]. Instagram. https://www.instagram.com/p/ByR9B3knUty/?utm_medium=share_sheet
OTROS
Richard Neutra. UCLA Library Digital Collections Beta. https://digital.library.ucla.edu/catalog?f%5Bmember_of_collections_ssim%5D%5B%5D=Richard+and+Dion+Neutra+Papers%2C+1925-1970&sort=title_alpha_numeric_ssort+asc&view=gallery
Richard Neutra (1946). UCLA, Library Box, University of California, LA. Compartido por Molly Haigh. https://ucla.box.com/s/3foufm49a99z1wqyqimvf80lfyh3mcea






































































































































































Comentarios